3 300 000 $

2611 Ch. du Village

  • 4 Chambres
  • 3 Salles de bain

Bienvenue au 2611 chemin du village; un petit domaine résolument montagnard en plein coeur du village. Offrant une vue spectaculaire de la montagne Mont-Tremblant et un bord de l'eau de plus de 300 pieds sur la rivière cachée. Plafonds cathédrale, matériaux nobles et finitions haut de gamme. Terrasse couverte de 700pi², piscine et accès direct aux activités de plein air dont un accès, directement de la propriété, aux pistes de randonnée, de raquettes et de vélo font de cette propriété un véritable havre de paix.

Centris No.
20414255 
Année de construction
2009 
Dimensions du terrain
7604.10  M2
Taxes municipales
7 016 $
Taxes scolaires
934 $
 

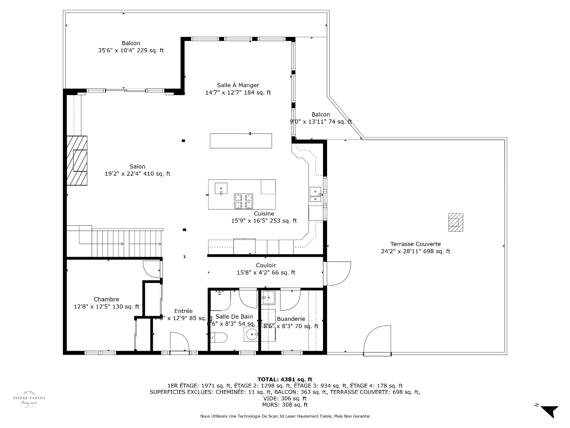
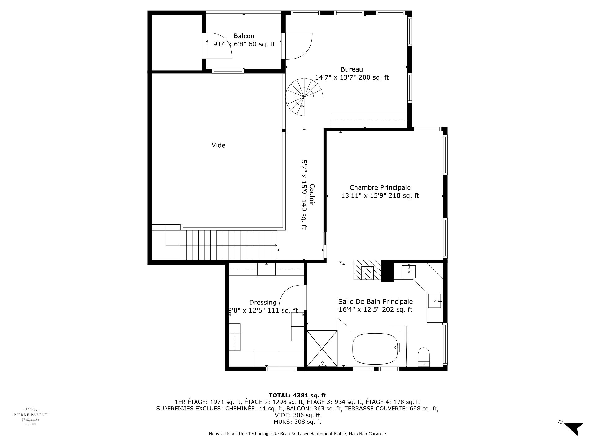
Chambres & Dimensions

Sean Hummell
Courtier immobilier

Étage #2

Chambre à coucher principale
13.11x15.9 P
Salle de bains
16.4x12.5 P
Penderie (Walk-in)
9x12.5 P
Bureau
14.7x13.7 P

Étage #3

Boudoir
14.7x13.5 P

Rez-de-chaussée

Hall d'entrée/Vestibule
7.8x12.9 P
Cuisine
15.9x16.5 P
Salle à manger
14.7x12.7 P
Salon
19.2x22.4 P
Chambre à coucher
12.8x12.5 P
Salle de bains
4.6x8.3 P
Salle de lavage
8.6x8.3 P

RJ

Chambre à coucher
15.4x12.5 P
Chambre à coucher
14.7x13.7 P
Coin repas
12.6x8.6 P
Salle de bains
9.4x8.3 P
Autre
19.2x12.5 P
Hall d'entrée/Vestibule
19.4x6.11 P
Autre
15.7x18.5 P

2611 Ch. du Village, Village Mont-Tremblant, Québec, J8E1E9, Canada